価格 |
3,480万円 |
||
|---|---|---|---|
間取 |
4LDK |
築年月 |
2026/03(建築予定) |
建物面積 |
112.62m²(34.06坪) |
土地面積 |
178.01m²(53.84坪) |
所在地 |
北上市しらゆり |
||
現況 |
建設中 |
||
周辺環境 |
県交通有田入口バス停まで 徒歩20分 |
お電話でのお問い合わせ
物件コード:B4038
お電話でお問い合わせの際は、物件コードをお伝えください。
0197-65-2103
営業時間:10:00 AM - 6:00 PM
定休日:毎週水曜日、日曜日
ポイント
POINT
1号棟、オール電化、浴室暖房、浴室乾燥機、追焚機能、洗面洗面化粧台、トイレ2ヶ所、システムキッチン、食器洗浄乾燥機、浄水器、IHクッキングヒーター、TVドアホン、ディンプルキー、ダブルロックドア、省エネ給湯器、エアコン、三層複層ガラス、Low-E ガラス
物件詳細DETAIL
建物構造 |
木造2階建 |
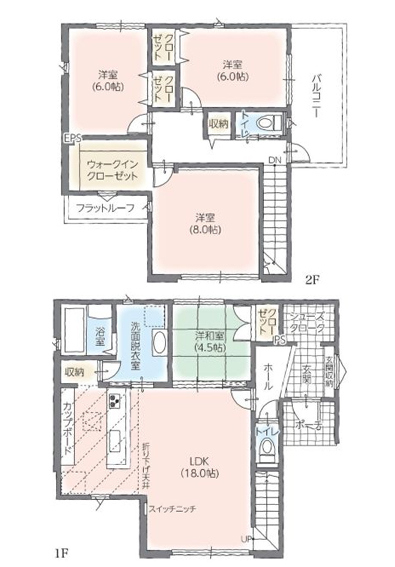
間取詳細 |
|
|---|---|---|---|
建ぺい率 |
60% |
容積率 |
200% |
地目 |
宅地 |
用途地域 |
第一種中高層住居専用地域 |
取引態様 |
仲介 |
私道面積 |
- |
引渡時期 |
相談 |
土地権利 |
|
借地料 |
- |
借地期間 |
- |
セットバック |
無 |
建築確認番号 |
R07-1-1413-0号 |
接道 |
諸費用 |
||
学区 |
黒沢尻西小学校 1,670m
北上中学校 2,920m |
||
特色/設備 |
上水道、水洗、駐車場、南道路 |
||
情報更新日 |
2026年02月10日 |
次回更新予定日 |
2026年02月11日 |
取引条件有効期限 |
2026年02月24日 |
※掲載されている物件データが現状と異なる場合は現状を優先します。
周辺地図MAP
株式会社北斗エステートCOMPANY
所在地 |
岩手県北上市本通り一丁目4番16号 |
||
|---|---|---|---|
免許番号 |
岩手県知事免許(2)第2656号 |
||
会員 |
一般社団法人岩手県宅地建物取引業協会
(公社)全国宅地建物取引業保証協会
東北地区不動産公正取引協議会
|
||
電話番号 |
0197-65-2103 |
FAX番号 |
0197-65-2111 |
営業時間 |
10:00 AM - 6:00 PM |
定休日 |
毎週水曜日、日曜日 |
