価格 |
2,200万円 |
||
|---|---|---|---|
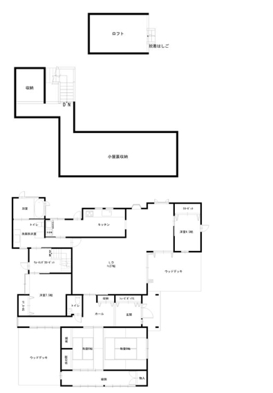
間取 |
4LDK+S |
築年月 |
1971/12(築54年) |
建物面積 |
140.8m²(42.59坪) |
土地面積 |
505.81m²(153坪) |
所在地 |
奥州市水沢真城字垣ノ内 |
||
現況 |
居住中 |
||
周辺環境 |
県交通瀬台野バス停まで 徒歩10分 |
お電話でのお問い合わせ
物件コード:B4013
お電話でお問い合わせの際は、物件コードをお伝えください。
0197-65-2103
営業時間:10:00 AM - 6:00 PM
定休日:毎週水曜日、日曜日
ポイント
POINT
トイレ2ヵ所
物件詳細DETAIL
建物構造 |
木造平家建 |
間取詳細 |
|
|---|---|---|---|
建ぺい率 |
60% |
容積率 |
200% |
地目 |
宅地 |
用途地域 |
第一種住居地域 |
取引態様 |
私道面積 |
- |
|
引渡時期 |
相談 |
土地権利 |
|
借地料 |
- |
借地期間 |
- |
セットバック |
無 |
建築確認番号 |
|
接道 |
諸費用 |
||
学区 |
常盤小学校 2,040m
東水沢中学校 2,540m |
||
特色/設備 |
上水道、水洗(浄化槽)、私道共有持分有125㎡(1/4) |
||
情報更新日 |
2026年02月25日 |
次回更新予定日 |
2026年02月26日 |
取引条件有効期限 |
2026年03月11日 |
※掲載されている物件データが現状と異なる場合は現状を優先します。
株式会社北斗エステートCOMPANY
所在地 |
岩手県北上市本通り一丁目4番16号 |
||
|---|---|---|---|
免許番号 |
岩手県知事免許(2)第2656号 |
||
会員 |
一般社団法人岩手県宅地建物取引業協会
(公社)全国宅地建物取引業保証協会
東北地区不動産公正取引協議会
|
||
電話番号 |
0197-65-2103 |
FAX番号 |
0197-65-2111 |
営業時間 |
10:00 AM - 6:00 PM |
定休日 |
毎週水曜日、日曜日 |
